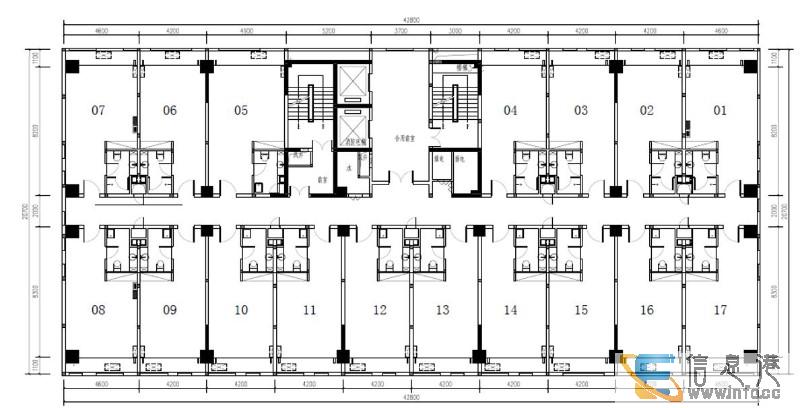
万科淮海天地位于新淮海西路6号,地处淮海经济区主轴线交汇处,有着得天独厚的地理优势,可辐射至云龙区、鼓楼区、铜山区、贾汪区、丰县、沛县、安徽部分区域如萧县、砀山县以及山东部分区域如枣庄、微山县等周边许多地区,为项目累积了大量客群。SOHO商务中心位于徐州主要干道新淮海西路之上,地处西二环与城市东西中心轴线交汇处,西连西三环高架,东接淮海路,南面毗邻云龙湖风景区,北居西苑,连接九里山开发区,道路出行通畅,西三环高架与北三环高架已经建成通车,是徐州城市发展规划工程的“西引力”。且目前正在建设中的地铁1号线距离本案约450米(预计2019年中正式通车运营),交通异常便利。目前租赁单价为1.5元/平/天,租赁价格含物业费,租赁面积可根据实际需求来谈,单间面积约在53平米,整层面积约871平米,共17个独立房间,中间隔断可拆除,也可以几层同时租赁。项目周边配套齐全,麦当劳、家乐福已进驻,更有小吃街区,周边交通便利,距离地铁一号线近在咫尺,享受万科的品牌楼宇,享受万科物业管家服务。万科提供星商汇平台,助您的企业获取更多市场资源。
联系我时,请说是在商业信息网看到的,谢谢!








